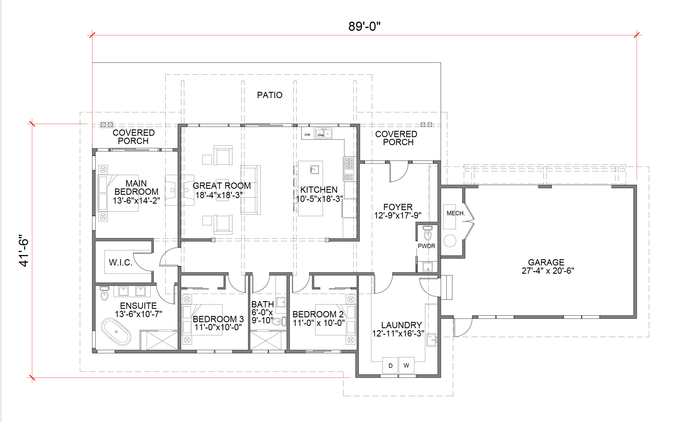
CUSTOM SERIES Colorado Sq ft: 2,060 Bedrooms: 3 Bathrooms: 2.5 INTERESTED IN THIS BUILD? Book a Free Consultation Back to Custom Series Plans Next Project Showcase →