CUSTOM SERIES
Temecula
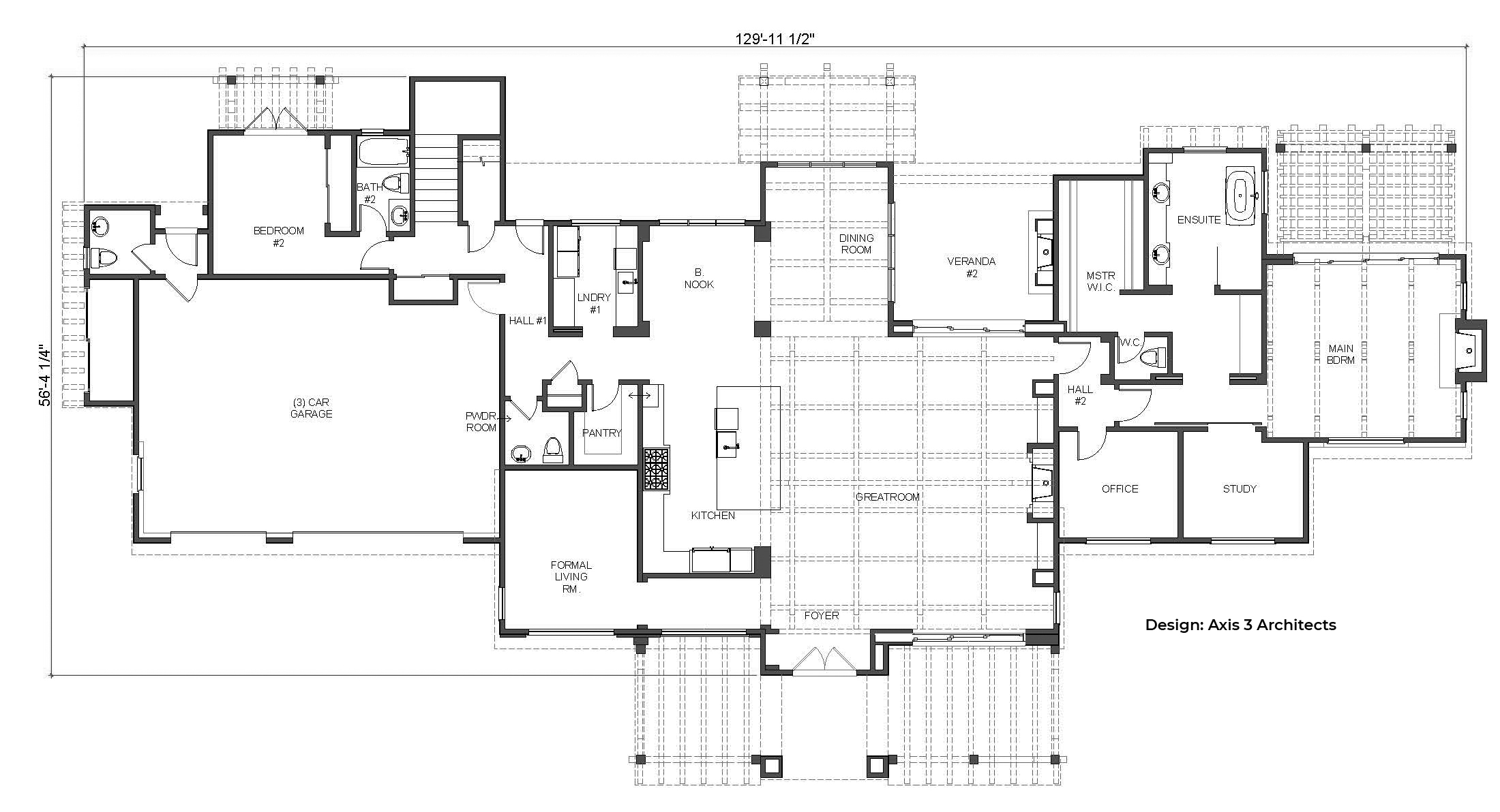
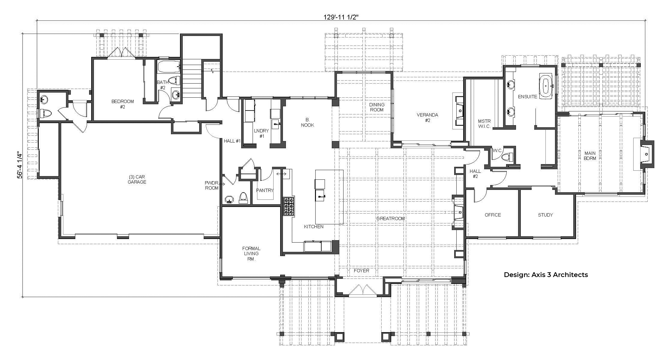
- Sq ft: 4,255 + integrated garage
- Bedrooms: 4+
- Bathrooms: 6.5
INTERESTED IN THIS BUILD?
Located in the wine region of Southern California, this custom home is a refined expression of Spanish Colonial design, thoughtfully adapted into Tamlin’s prefabricated building system. Designed by Axis 3 Architects, the home reflects a strong commitment to traditional architectural detailing, with Tamlin’s prefabricated system supporting and accurately executing the original design intent.
The exterior is defined by white stucco finishes and a tile roof, with covered porches at both the front and rear entries that reinforce the indoor-outdoor lifestyle suited to the region. These sheltered spaces create a gradual transition into the home, softening the boundary between interior and exterior while responding to the climate and setting.
Inside, the character of the home is immediately established through its material palette and structure. The great room is defined by a dark wood ceiling with exposed beams, creating a sense of depth and richness that anchors the space. This expression continues throughout the home, where timber beams introduce rhythm and continuity, reinforcing a cohesive architectural language.
Arched doorways guide movement between spaces, while tile floors and decorative tile stair risers add texture and craftsmanship underfoot. Custom wrought iron railings provide a refined contrast to the heavier materials, contributing to a layered interior that feels both traditional and carefully composed.
The layout is designed to support both everyday living and gathering, with spaces that flow naturally while maintaining a sense of definition. The result is a home that feels authentic to its architectural roots while remaining highly livable, balancing detail, scale, and comfort.
The Efficiency of Prefabrication
This project highlights the versatility of Tamlin’s prefabricated system in the California market. Built on an insulated concrete form foundation to meet strict energy and seismic requirements, the home package was manufactured and delivered as a complete system.
By coordinating the structural components in advance, complex architectural elements could be assembled efficiently while maintaining the integrity of the original design intent. This approach supports a more predictable and streamlined construction process, even for highly detailed custom homes.

